/
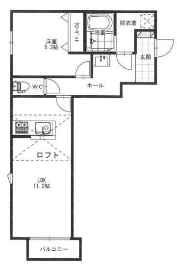
【間取り】
-
バストイレ別
-
室内洗濯機置場
-
TVモニタ付きインターホン
-
独立洗面台
-
オートロック
-
ネット使用料無料
- 保証金
- -
- 敷引 / 償却
- - / -
- 敷金積み増し
- -
- 間取り / 詳細
- 1LDK
洋室 5.3帖/LDK 11.2帖 - 向き
- 南
- 専有面積
- 41.85㎡
- バルコニー
(テラス)面積 - -
- 所在階 / 階建て
- 2階 / 2階建
- 建物構造
- 軽量鉄骨
- 築年月
- 2025年9月(新築)
- 種別
- アパート
- 保険会社 / 料金
- 有 20,000円 / 2年
- 保証会社 / 料金
- 必加入 / その他
82500円
年間保証更新料10000円/年 - 現況
- 完成済み
- 入居可能時期
- 即時
- 設備条件
-
- 2人入居可 / 室内洗濯機置場 / フローリング / ロフト付き / バルコニー / 都市ガス / 公営水道 / 公共下水 / 駐輪場 / ガスコンロ / コンロ2口以上 / システムキッチン / コンロ3口 / バス・トイレ別 / 追焚機能浴室 / 温水洗浄便座 / 洗面台 / シャワー / 独立洗面台 / エアコン / シューズボックス / 光ファイバー / ネット使用料無料 / オートロック / TVモニタ付インターホン / 宅配ボックス / 角部屋
- 契約期間
- 2年
- 賃貸区分
- 一般
- 更新料
- 1ヶ月(新賃料)
- 更新事務手数料
- -
- 総戸数
- -
- 特優賃
- -
- 取引態様
- 仲介
- 物件番号
- 97545958
- 管理コード
- -
- 情報更新日
- 2025年11月14日
- 次回更新予定日
- 2025年11月28日
- 備考
- 閑静な住宅地に聳え立つ豪華新築アパート!寝食をしっかり分けて利用できる独立性の高い1LDK^^ひかりTV・ネット無料でコストパフォーマンスもGOOD^^TVモニターホン&オートロックとセキュリティも◎
-
コンビニエンスストア
セブンイレブン 中野大和町1丁目北店
259m(4分)
-
スーパー
マルエツ プチ 大和町店
337m(5分)
-
スーパー
マルエツ プチ 大和町店
337m(5分)
-
コンビニエンスストア
セブンイレブン 中野大和町1丁目店
391m(5分)
-
コンビニエンスストア
セブンイレブン 中野大和町1丁目店
391m(5分)
-
スーパー
まいばすけっと 高円寺大和陸橋店
406m(6分)
物件の特徴
セールスポイント
最新設備充実の新築アパート登場^^見れば納得のスペック^^
担当者のコメント
基本情報
設備条件
その他
周辺施設
近隣の物件
中野区大和町1丁目のアパート
16万円
5,000円
1LDK(41.85㎡)












橘 真人